みなさま、こんにちは。
今回は、FROMプロデュース物件「エスペランサ神宮前」の301号室のおすすめポイントをご紹介いたします!


エスペランサ神宮前は 外苑前駅 徒歩6分/ 表参道駅 徒歩8分 とアクセス抜群の立地を誇ります。
言うまでもなく、人気エリアの神宮前。
新宿区や港区などに囲まれた都会の真ん中に位置しており、非常に優れた立地であることが改めて認識できますね!

なんとこちらの物件は「SOHO物件」と呼ばれる、住居と事務所、両方に使用できる物件です。
SOHO物件については過去のブログで詳しく解説しておりますので、気になる方はぜひこちらからご覧ください!

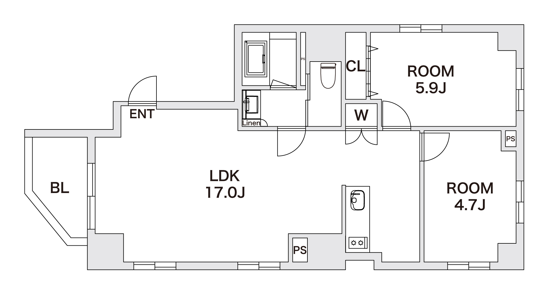
それではお部屋の中をみていきましょう!
こちらはLDKのお部屋のお写真です。17帖と、十分ゆとりのある広さですね。
ブログの筆者も実際に現地に出向いておりますが、広々として明るく、スタイリッシュなお部屋だなという印象を受けました!


水回りはホワイトとブラックでまとめた、シンプルモダンな雰囲気です!
住居感が出過ぎず、SOHOとして使用する場合にも違和感なくお使いいただけること間違いなしです。

外苑通りに面しているので騒音が心配、、、という方でもご安心ください。
FROMプロデュースのほとんどの物件で防音性の高い2重サッシを採用しております!
2重サッシは防音性の他にも、防犯性・遮熱性・省エネ効果など様々な導入のメリットがあります。
入居される方の快適さ、建物自体を永く良い状態に保つこと、地球環境保護などの貢献につながるため、窓ガラス1枚という小さな違いではありますが、会社としてこだわるポイントの一つです。

「エスペランサ神宮前」301号室は絶賛ご入居者様募集中です!
詳細はこちらをご覧ください。
本日は以上です。
最後までお読みいただきありがとうございました。